St. John’s College Master Plan

All work completed with NBWLA. Campus master plan in collaboration with EE&K and Dynerman Architects.

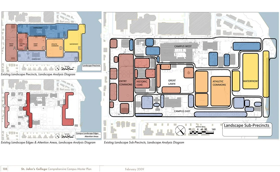
St. John’s College is a private, liberal arts college that dates back to 1784 (and earlier as a preparatory school to 1696) located on 27 acres in downtown Annapolis. The campus overlooks College Creek, a tributary of the Severn River in the Chesapeake Bay and has a unique Great Books Program curriculum that focuses on the Western canon of literature. Project components included the landscape master plan that built on the college's extensive collection of native plants and developed strategies to improve outdoor classroom and reading spaces, create campus landscape zones, reduce stormwater runoff and strengthen views onto College Creek. Paul Josey, while working at Nelson Byrd Woltz, lead the landscape design portion of the master plan and later worked on the implementation of that plan.

LOCATION

Annapolis, MD

DATES

Completed

SIZE

27 acres

ROLE

Paul Josey - Project Manager

RELATED PROJECTS

St. John’s College